多段(多块)提升门

产品参数

适用于两侧边垛空间小,顶部高度有限的超宽、超高门。需根据具体洞口尺寸和结构设计。可广泛应用于工矿企业、体育场所、会展博览中心、大型超市出入口、小型机库等场所。...


产品细节

组成与概述:

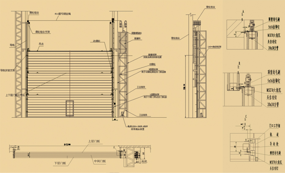
由六大部分组成:1)门体系统;2)轨道系统;3)配重系统;4)密封系统;5)开门机系统;6)传动系统。

由多块门板组成,N块门板就称其为N段垂直提升门,最常用为两段垂直提升门和三段垂直提升门。

多段提升门通常采用配重平衡。配重有导向,安全可靠,故障率低,门板强度好,多块门板联动。可手动,电动,遥控控制。

大型和特大型多段提升门可采用卷扬机动力平衡方式,省掉了配重对空间的占用面积。

适用范围:

适用于两侧边垛空间小,顶部高度有限的超宽、超高门。需根据具体洞口尺寸和结构设计。可广泛应用于工矿企业、体育场所、会展博览中心、大型超市出入口、小型机库等场所。

材质:

门体设计为钢结构,非采光结构时保温为聚氨酯或聚苯。采光结构时,应用保温性能和透光性能俱佳的阳光板。

根据洞口大小不同,可选择不同厚度门板,一般厚度:50mm、75mm、100mm、120mm、160mm、200 mm,特大型多段提升门整体厚度为2 ~ 3米。

门板滚轮内镶有带防尘盖轴承,防止灰尘进入影响轴承润滑;

轨道一般由厚钢板和方管组成,可以选择不同颜色的漆附着;

密封条材质采用三元乙丙橡胶和毛刷密封,回弹指标良好、耐候性良好、耐低温、表面平展光滑;

传动滑轮、链轮均采用优质碳素结构钢加工制作,选用带防尘盖轴承。

特点:

多段提升门通常是由钢丝绳在动、静滑轮中缠绕,通过链传动和滑轮传动实现开关动作。这种传动原理使门板按一定的传动比以不同的速度运行,最终同时开、关、停并通过配重达到平衡状态;

启动和停止平稳,没有冲击载荷。

门板除了可以外罩彩板外,还可以装饰铝塑板等装饰面,增加美观,提高档次,耐腐蚀、美观;

优质的板材、标准件增加了门体的强度;

大门上可开设采光窗(带),也可采用全采光结构,采光材料选用轻质的阳光板;

由多块门板组成,降低顶垛空间;

可遥控、手动开关大门(中小型多段提升门)

门体两侧有红外线保护系统,当有人员或物品通过正在下降中的大门时,大门会自动反弹上升;(选配)

底边有气囊保护系统,受到轻微挤压,大门就会反弹上升;(选配)

门板上安装防坠落安全锁,可以有效防止大门的意外坠落。(选配)

(2)MDDP多段提升门总图

多段提升门-cs.jpg

技术参数:

开启速度:0.1~ 0.25m/s

使用温度范围:-50℃~ +70℃

抗风压能力:具体设计可满足任意风压要求。

电机保护等级:IP54

电源: 2相220V和3相380V 

控制电压:24V

在线留言


相关产品

在线留言